家づくりストーリー 〜I邸の場合〜

外観・内観を見る はじめに戻る▲
出会い こだわり プランニング 実施設計 見積調整 手づくり感 竣工 楽しい時間

I邸
家族の成長と歴史を
見守り、包みこんでいく家。

2010年初夏。
Iご夫妻に待望の長男・蓮(れん)クンが誕生。
そして、初秋。
新居へ引っ越して、3人の新しい生活が始まりました。
20代で家づくりに取り組んだIご夫妻。
TAO建築設計との出会いから、1年余にわたるプロセスをご紹介します。

家づくりストーリーを読む

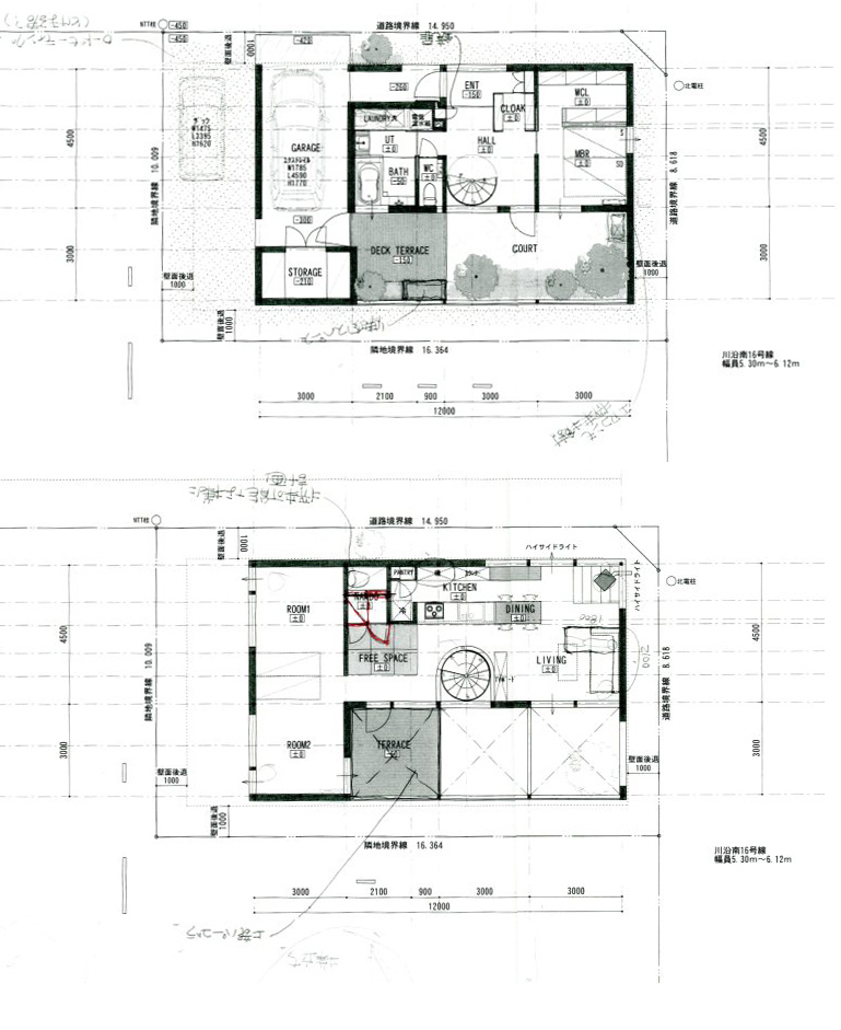
約50坪の敷地。南側に隣家とガレージがせまっている。

出会い

Iご夫妻は、結婚2年目。
笑顔に幸せ色が重なる、すてきなご一家です。
結婚当初は賃貸マンションに住んでいたものの、なるべく早く一軒家を建てたいと希望。土地は、ご主人のおばあさまが提供してくださることになっていました。

「たくさんのハウスメーカーを見て回りました。でも、どこもあまりピンとこなくて…雑誌やインターネットをいろいろ見ているうちに、TAO建築設計を知りました」
TAO建築設計が手がけた物件をすべてチェック。そして、来所されました。
「他のメーカー等からは、なるべく早く建てるようせかされました。川村さんにはじっくり取り組みましょうと言ってもらい、ほっとしたんです。ていねいに対応していただき、信頼できると感じました」

こだわり

ファーストスケッチ。シンプルな短形プランに、中庭に繋がる中間領域を持たせた。
ファーストスケッチをもとに打合せを重ね、プランが具体化されていく。

こだわり

子どものこと、子どもの成長のこと、子どもが独立した後のこと…
Iご夫妻は若いながらも、いずれ生まれてくるお子さまのことも考え、人生設計を具体的に描いていらっしゃいました。
でも、まだこの段階ではお子さまの誕生の兆しはありませんでした。

家への夢を語り、イメージを具現化するプロセスが進み始めたある日、奥様に小さな命が宿っていることがわかったのです。
新しい家族と新しい家…大きな夢が、現実へと大きく動き始めました。

お二人が描く、理想的な家は…

  • ・開放的で広い玄関ホール
  • ・高い天井
  • ・大きな窓がある
  • ・風呂から庭が見える
  • ・ペレットストーブであたたまる
  • ・庭にバーベキュー・コーナーがほしい
  • ・子どもの成長に合わせてフレキシブルに
     間仕切りできるスペース

など、頭の中にはさまざまなシーンが浮かび上がっていました。

そして、お二人の思いを具現化するプランニング作業へと取りかかったのです。

出会いプランニング

プレゼンテーション模型。南側に2階までのルーバーに囲まれた中庭を持つ。
採光と景観を意識したつくりになっている。

プランニング

建築予定地の南側にすでに建っている家との境界を意識しながら、
圧迫感なく暮らす家づくりを、まず重点的に考えました。

また、庭とテラスをできる限りゆったりと配置して、内と外とのつながりをつくることで、ご夫妻のこだわりに応えたいと基本プランを練り上げていきました。

「模型を見たときは、この家がほしい!と強く思いました。まさに理想通り。
夢をあきらめなくて、よかったです。川村さんは、私たちのどんなわがままも真摯に受け止めてくれました」

基本プランを気に入っていただけたので、実施設計へ入ることになりました。

こだわり実施設計

お気に入りの家具に合わせて、デザインされたキッチン。

実施設計

Iご夫妻は、お使いになる大きな家具をすでに決めていらしたので、そのイメージにそった内装を心がけました。ダイニングテーブルのサイズに合わせて、キッチンを設計するなど空間全体の一体感を重視。

2階のリビングからつづくテラスも居住空間の一部としてとらえ、コンパクトながら広がりを感じられる暮らしを大きなテーマとして設計に取り込んでいます。

さらに、お子さまの成長とともにフレキシブルに間仕切りできる
スペースづくりも、大切なこだわりでした。
お子さまは2人ほしいとご希望なさっているので、しばらくは広いワンルームとして使用し、将来的には2つの子ども部屋として仕切ることができるように設計。お子さまの独立後は、またフリースペースに戻すとともに、トイレも設置できるよう配管を敷いておくことにしました。

「迷ったら、川村さんに聞く、相談する。
そうすると、自分たちでは思いつかない、よりよいプランを提案してくれました。それでも、仕上がりをなかなか想像できないこともありました。でも、絶対に良くなると強く信じられたので、基本的には川村さんにお任せ(笑)。それで良かったと、とても満足しています」

プランニング手づくり感

見積りの細部検討を重ね、調整していく。
重ねた減額内容を分かりやすい表にまとめ、施主と一緒に検討。
引き渡し後も続く施主との打合せの様子。

見積調整

TAO建築設計では、材料、数量、単価、工法など、あらゆる点から
見積書を施主さまと一緒に検討、調整します。

「川村さんは、減額の仕方、工務店探しに必要なポイントなど
親身にアドバイスしてくれました。100円、1000円単位で
細かく業者さんに指示するんです。とても心強かったですね」

それでも、当初の予算よりはオーバー。
こだわりを妥協せずに、どこまで減額できるか…
Iご夫妻と調整の日々が続きました。

「蛇口、照明、浴槽、シャワーヘッド、散水栓など、あらゆるアイテム1つずつについて、安くてもいいものをすすめてもらったんです。すごい知識ですね。感嘆しました。ローンの組み方まで的確にアドバイスいただき、すべて至れり尽くせりでしたね」

実施設計手づくり感

バーベキュー炉をつくる前のテラスの様子。
いよいよ組み立て開始。ぴったりと組み上がっていく。
黙々と一心不乱に取り組む。
完成したバーベキュー炉の前で記念写真。

手づくり感

当時、お住いのマンションから近いこともあり、
Iさまはほぼ毎日工事現場へ。
隣家との境界になっているルーバーの木、
300本の塗装もこなされました。

「妻は妊娠中だったので無理でしたが、友だちに手伝ってもらい、
二度塗りまで頑張りました。暑い時期だったので、大変でしたね(笑)。
でも、その分の経費も減らせたし、できあがりをみると愛着もひとしお。
とてもよかったです」

その他、洗面台のやすりがけなどもお手伝いいただきました。
最後は、待望のバーベキューセットの組み立てを。
札幌軟石を使った特注品です。

「川村さんの設計図通りにサイズ・カットされた石を
組み上げていくだけでしたから、意外と短時間で完成させられました。
レンガとは違う趣があり、すごく気に入っています」

ここで、塗装を手伝ってくれた友だちや近くに住む両親、
おばあちゃんをもてなす日が、とても楽しみとのことです。

見積調整竣工

庭工事前の中庭の様子
植栽完成後。たたずまいが一変する。
エントランスホールからの中庭の眺め。黒いルーバーに緑が映える。

竣工

2010年春、見積すべてに納得いただき、いよいよ工事へ。
5月初めに着工し、8月末に完成しました。
この間、基本的には1週間に1回のペースで、現場施工者も含めた定例会を開き、微調整を繰り返します。

そして、9月8日、引渡しへ。

玄関を入ると、吹き抜けのゆったりしたホール。
窓の向こうには、庭が広がります。
らせん階段がアクセントとなり、上へとつづく、のびやかな空間を演出。
見えない収納も心がけました。

「最初は、らせん階段は子どもにはどうだろうと迷ったんです。川村さんは、安全性を第一に考え、揺れを防ぐ設計にしてくれました」

らせん階段は、限られたスペースを有効に使うことができます。安全性にも最大の配慮をし、ご提案しました。
「家の真ん中に階段がある暮らしは、想像以上に便利です。どの部屋にいくのもラクですよ」

その他、掃除がしやすい回転窓、ほこりがたまりにくい照明器具など、実際にお住みになってからの利便性をできる限り取り入れています。

「すべての動線がスムーズで、それまでのフラットなマンションより暮らしやすいですね。仕切りのないお風呂や天井の梁など、完成して使ってみないとわからない部分もありましたが、川村さんに任せて大正解でした!」と、ご夫妻そろって笑顔がこぼれました。

この仕事を選んでよかったと実感できる、幸せな瞬間です。

手づくり感楽しい時間

オープンで作業がしやすいキッチン。

楽しい時間

「初めての子育てで、正直ストレスを感じることも多かったんです。でも、新居に引っ越してから、精神的なゆとりを感じています。食器洗い機などで家事の時間を短縮できるからでしょう」と連ちゃんをニコニコとあやす奥様。「キッチンも使いやすいし、家族や友だちを呼ぶのが楽しみです」

庭に完成したバーベキューコーナーで、ピザも焼く予定。お料理上手の奥様のレパートリーが、これからもどんどん増えそうです。

「仕事が終わったら、まっすぐ家に帰ってきます」と、ご主人。お二人とも「家が大好き!」。
子どもにも、この家を好きになってもらいたいね、とお二人で声をそろえます。
庭でお子さまを遊ばせたり、描いた絵を壁に飾ったり…そんな光景が、お二人にはすでに見えているようです。

「家を建てるのは、やはり大変なこと。初めてのことばかりでしたが、とれもいい勉強になったし、楽しかったです。本当に、住みごこちに大満足です」

10年、20年…家を建てるということは、これからの家族のあり方を見つめること。Iご夫妻にとって、この家で刻んでいく家族の歴史が何よりの財産になることを心から願っています。

ワークスギャラリーで詳細を見る

竣工