「顏が見える仕事」への想い
TAO流家づくりのプロセス
家づくりストーリー
TAOの仲間たち
ワークスギャラリー
バックナンバー
川村弥恵子プロフィール
スタッフ紹介
アクセスマップ
会社概要
リンク
TOPICS&MESSAGE
住宅
|
その他
オオヤネテラスノイエ
: new
KIBAKO
: new
KABAYAMA VILLA
オオヤネノナガヤ
ゴカクコート
モイワヲノゾムイエ
ソラニワコート
SECOND LIFE COURT
CUBE COURT
HIRAYA CATS COURT
ダイケイコート
ミヤノモリスキップハウス
ウラニワコート
DOUBLE SIDE COURT
KN COURT 外観
KN COURT 内観
川沿コート2
円山川の家
キトウシサンカクヤネノイエ
アウトドアテラスコート
ミハラシノイエ
ソトノウチコート
ヤケイノハコ
カイウンコート
ジザイコート
Y COURT
ヤケイコート
モコトコート
CATS COURT
レンソウノニワヤ
ヤマノテコート
カワソバコート
TOMATO COURT
KUMABAN
マルヤマテラスコート
ミハラシノヒラヤ
ハナレコート
□-HOUSE
MARUYAMA SKY COURT
LINE COURT
山の手テラスコート
Z HOUSE
ガレージコート
スミイロノニワヤ
ソラハコノイエ
カムイノヒラヤ
HUXUE (フーシェ)
2 BOX COURT
ハチノジコート (HAKO/12)
TAOYA
オオヤネノフタツヤ
4 BOX COURT
モリニワノイエ
3 BOX COURT
D-COURT
SKIP COURT
ニャンニョロノイエ
カワギシノイエ
JIN COURT
T-COURT
イシニワノイエ
VOID COURT
フトウヘンヤネノイエ
Re:YA邸(ユキヤナギノイエ)
タカサゴコート
イヌネコニワノイエ
4+2+1+1コート
カメニワノイエ
ZUREYA
Re:SAK邸
ソラテラス
Re:HA邸
イナホコート
花光フォレスト
クミバコノイエ(HAKO/11)
EDGE COURT
Amejika
そらにわのいえ
オオヤネコート
ビルワノヒラヤ
コニワノイエ
囲み庭の家
ヤマニワノイエ
Re・SA邸
アカリノハコ(HAKO/10)
ヨビトノイエ
KIZUKURI-HOUSE
Re・K邸
OREYA
フモトノヒラヤ
三日月の家(みかづきのや)
Re・S邸
モリノイエ(HAKO/09)
Re・H邸
UNADOKO
ゴカクノイエ
イケソバノイエ(HAKO/08)
ニシキマチノコート
カワソバノイエ(HAKO/07)
サンカクヤネノイエ
YOSEMUNE
FUTAMUNE
シカクノイエ(HAKO/06)
RANDOM LIGHTS
旭ヶ丘コート
ドマノハコ (HAKO/05)
アケボノコート
HANAREYA (HAKO'02)
スミイロノイエ
モミジノイエ
BLACK BOX (HAKO/04)
川沿コート
EDGE HOUSE
七飯のコートハウス (HAKO/03)
ARTIST HOUSE
白石のコートハウス
山鼻のコートハウス
INUYA (HAKO'01)
NAMIYA
土間のある家
円を持つ平屋
Kレジデンス
石巻のコートハウス
NEKOYA (HAKO/02)
サンカクノイエ
KONOYA
KUMIYA(HAKO/01)
TSUINOYA
眺めの良い家
小樽花園のコートハウス
MAGARIYA
house 4+1+1
円山ふもとの家
小樽花園のCUBE BOX
新琴似のコートハウス
山の手のコートハウス
MACHIYA
HIRAYA
NAGAYA
小樽N院庫裡
HOUSE U
HOUSE CB+W
CATS HOUSE
帯広の家/K邸
黒籠の家
西野のコートハウス
HOUSE M
手稲富丘のコートハウス
円山の2軒並びの家
円山の2軒並びの家 F邸
円山の2軒並びの家 K邸
手稲高台の2世帯の家
群青-藍/翠/蒼
釧路陵墓公苑 陵雲閣
釧路陵墓公苑 さくら庵
HONDA AUTO RENT A CAR OFFICE
アシストオフィス
KUMABAN
KUMABAN KOBA
boiler
極上のほぐし処 ほそかわ
こばと薬局みなみ
十勝整形外科クリニック
Picea-jezo (ピセア-エゾ)
マルイチ後藤商店
OTARU かなる
極上のほぐし処 ほそかわ
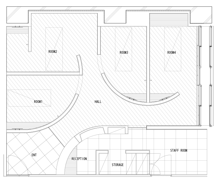
アール壁でゆるやかに仕切られた、光の空間
廊下からエントランスを望む。
エントランスから受付・ホールを望む。
受付、施術ブースと柔らかな光をはらむアール壁が連続する。
照明と、障子越しの自然光により美しく浮かび上がる施術ブース。
間接光に演出された施術ブース内観。
障子越しの自然光に満たされる施術ブース内観。
所在地
札幌市北区
用途
店舗
設計期間
2015.12〜2016.3
工期
2016.4〜2016.6
用途地域
商業地域
延床面積
56m2(16.94坪)
構造規模
RC造6階建
主な内部仕上
[床]ナラフローリング、Pタイル
[壁]塗壁、ビニルクロス貼
[天井] 木製ルーバー、ビニルクロス貼
施工
(株)日天
拡大する
この図面を印刷する
ページの先頭へ
TAOの思い
「顏が見える仕事」への想い
家づくりプロセス
TAO流家づくりのプロセス
家づくりストーリー
ワークス
ワークスギャラリー
バックナンバー
TAO案内
川村弥恵子プロフィール
スタッフ紹介
アクセスマップ
会社概要
リンク
TOPICS
TOPICS&MESSAGE
〒064-0808
札幌市中央区南8条西26丁目2-8
FAX 011-561-4475
Copyright(c)
TAO建築設計
. All Rights Reserved.