TAO建築設計


カムイノヒラヤ

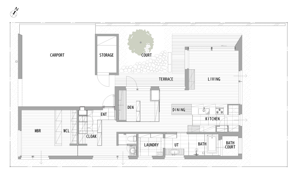
シャープな軒と縁側テラスが巡るコの字プランのコートハウス

道路からの北側外観夕景。正面の羽目板転写コンクリート打放し塀が<br>外部からの視線を遮ると共に建物の表情を端正に引き締めている。
道路からの北側外観夕景。正面の羽目板転写コンクリート打放し塀が
外部からの視線を遮ると共に建物の表情を端正に引き締めている。
中庭よりの外観夕景。コの字のプランに縁側の様なデッキテラスとシャープに跳ね出した軒が巡る。
中庭よりの外観夕景。コの字のプランに縁側の様なデッキテラスとシャープに跳ね出した軒が巡る。
ダイニングよりキッチン・リビングを望む。
ダイニングよりキッチン・リビングを望む。
リビングよりのキッチン・ダイニング見返し。テラス越しに中庭とつながり、拡がりと奥行きのある内部空間となっている。
リビングよりのキッチン・ダイニング見返し。テラス越しに中庭とつながり、拡がりと奥行きのある内部空間となっている。
バスコートをもつオープンなユーティリティとバスルーム。
バスコートをもつオープンなユーティリティとバスルーム。
所在地
旭川市神居
家族構成
夫婦(40代)
設計期間
2017.3〜2018.4
工期
2018.5〜2018.11
用途地域
準住居地域
敷地面積
227.94m2 (68.95坪)
建築面積
133.77m2 (40.46坪)
延床面積
125.78m2 (38.05坪)
構造規模
木造平屋建
外部仕上
[屋根]厚0.35 ガルバリウム鋼板 立てハゼ防水葺
[外壁]厚0.35 ガルバリウム鋼板 立平葺、厚18 杉本実羽目板貼
[建具]玄関扉:タモ/ナラ羽目板断熱扉、窓:木製サッシ(ペアガラス[Low-E]) / 樹脂サッシ(トリプルガラス[Low-E])
主な内部仕上
[床]磁器質タイル、ナラフローリング
[壁]塗壁、磁器質タイル、厚2 モールテックス塗
[天井] 塗天井、ヒバ羽目板
断熱仕様
[基礎]厚75+25 押出PSF B-3種
[屋根]厚286 吹込ロックウール60kg + 厚75 押出PSF B-3種
[土間下]厚50 押出PSF B-2種
[外壁]厚105 + 厚105 高性能GW16kg
施工
(株)芦野組
 

カムイノヒラヤ
拡大する

ページの先頭へ


TAO建築設計
〒064-0808
札幌市中央区南8条西26丁目2-8
TEL 011-561-4474
FAX 011-561-4475
お問い合わせ