TAO建築設計


群青-藍/翠/蒼

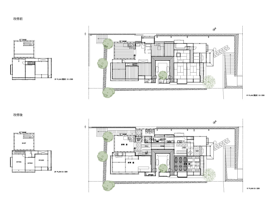
築120年の日本家屋を再生したショップとカフェ

エントランスアプローチ。軟石の敷石は厚い既存軟石塀を挽き割ったもの。
エントランスアプローチ。軟石の敷石は厚い既存軟石塀を挽き割ったもの。
エントランス見返し。陰影感のある、コンクリート打放し羽目板転写の塀。
エントランス見返し。陰影感のある、コンクリート打放し羽目板転写の塀。
エントランスホールよりSHOP「藍」を望む。右側「蒼」は石蔵でヴィンテージ家具が並ぶ。
エントランスホールよりSHOP「藍」を望む。右側「蒼」は石蔵でヴィンテージ家具が並ぶ。
「藍」入口正面。
「藍」入口正面。
北側土間エントランスホール。挽き割った軟石敷とした。
北側土間エントランスホール。挽き割った軟石敷とした。
「藍」入口よりレジカウンターを望む。カウンター仕上げは亜鉛メッキステンレス貼。
「藍」入口よりレジカウンターを望む。カウンター仕上げは亜鉛メッキステンレス貼。
「藍」内観。衣類、アクセサリー、雑貨、食品等が所狭しと並ぶ。
「藍」内観。衣類、アクセサリー、雑貨、食品等が所狭しと並ぶ。
「藍」店舗奥からの見返し。窓の外の石垣が景色となっている。
「藍」店舗奥からの見返し。窓の外の石垣が景色となっている。
CAFE「翠」カウンター。天板は既存のテラゾーの手洗いを再利用している。右は厚鉄板黒皮のレジカウンター。
CAFE「翠」カウンター。天板は既存のテラゾーの手洗いを再利用している。右は厚鉄板黒皮のレジカウンター。
北側エントランスホールよりカウンター見返し。
北側エントランスホールよりカウンター見返し。
「翠」テーブル席。奥の床の間に腰窓をしつらえ、石垣を景色として切り取った。
「翠」テーブル席。奥の床の間に腰窓をしつらえ、石垣を景色として切り取った。
テーブル席より中庭を望む。
テーブル席より中庭を望む。
中庭を望む。オーナー主ら苔と軟石を加え中庭を再生させた。
中庭を望む。オーナー主ら苔と軟石を加え中庭を再生させた。
「翠」イス席より座敷席を望む。
「翠」イス席より座敷席を望む。
「翠」座敷席より中庭への見返し。
「翠」座敷席より中庭への見返し。

※群青は2025年度小樽景観賞を受賞しました。

所在地
小樽市住之江
設計期間
2022.01〜2022.09
工期
2022.09〜2023.05
用途地域
第1種中高層住居専用地域
敷地面積
663.47㎡(200.70坪)
建築面積
264.06㎡(79.88坪)
延床面積
350.64㎡(106.07坪)
構造規模
木造2階建
外部仕上
改修部分
[屋根]瓦葺き、厚0.35 ガルバリウム鋼板立平葺
[外壁]厚18 杉羽目板下見板貼、コンクリート打放し、羽目板転写
[建具]玄関扉:厚8 強化ガラス扉、窓:樹脂サッシ(トリプルガラス[Low-E])
主な内部仕上
[床]軟石敷、既存床板貼
[壁]塗壁
[天井]杉羽目板
断熱仕様
[床]厚75 押出PSF B-3種
[外壁]厚105 高性能GW16kg同等品
施工
新栄工建株式会社
 

群青-藍/翠/蒼
拡大する

ページの先頭へ


TAO建築設計
〒064-0808
札幌市中央区南8条西26丁目2-8
TEL 011-561-4474
FAX 011-561-4475
お問い合わせ