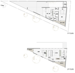
西側に国有地である雑木林が拡がっている。坂沿いの住宅地の端(EDGE)に位置する細長い三角形の敷地。ここは人の住処と自然との境目でもある。限られた敷地に許される限りのヴォリュームを確保し、様々な質の光を取り込んだ上で、隣接する豊かな自然を借景として存分に楽しむ住まいとした。
- 所在地
- 札幌市中央区宮の森
- 家族構成
- 夫婦(40代)
- 設計期間
- 2009.5〜2009.11
- 工期
- 2009.11〜2010.4
- 用途地域
- 第1種低層住居専用地域(風致地区)
- 敷地面積
- 252.39m2 (76.34坪)
- 建築面積
- 98.06m2 (29.66坪)
- 延床面積
- 167.24m2 (50.59坪)
- 構造規模
- 1階RC造、2階木造
- 外部仕上
- [屋根]厚0.35 ガルバリウム鋼板 フラットルーフ
[外壁]厚0.35 ガルバリウム鋼板 立平葺、厚0,8 ガルバリウム鋼板 平板貼 スタッコラースト塗、厚11 タモ 本実羽目板貼
[建具]玄関扉:タモ・ウォルナット羽目板断熱扉、窓:木製サッシ(ペアガラス[Low-E])
- 主な内部仕上
- [床]磁器質タイル、ウォルナットフローリング
[壁]塗壁
[天井]塗天井、ヒバ羽目板
- 断熱仕様
- [基礎(1F立上がり外壁)]厚60 押出PSF B-3種
[屋根]厚235 吹込セルロースファイバー55kg + 厚30 押出PSF B-2種 + 厚4 フォームエース
[土間下]厚50 押出PSF B-2種
[外壁]厚100,120 高性能GW16kg + 厚30 押出PSF B-2種
- 施工
- (株)藤井工務店
-

拡大する